afoi-vlachou.gr ...
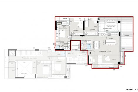
Aυτό το υπέροχο διαμέρισμα στον Β' όροφο των 113,77 τ.μ. προσφέρει τον απόλυτο συνδυασμό άνεσης και πολυτέλειας. Διαθέτει 3 ευρύχωρα υπνοδωμάτια, εκ των οποίων το 1 είναι το master bedroom με ιδιωτικό μπάνιο και βεστιάριο, εξασφαλίζοντας απόλυτη ιδιωτικότητα και άνεση. Το δεύτερο μπάνιο βρίσκεται στον κοινόχρηστο χώρο, εξυπηρετώντας τα υπόλοιπα δωμάτια με λειτουργικότητα. Ο ανοιχτός χώρος του ενιαίου σαλονιού και κουζίνας δημιουργεί μια ευχάριστη αίσθηση ευρυχωρίας και φωτεινότητας, ιδανικός για καθημερινές στιγμές με την οικογένεια ή για κοινωνικές συναθροίσεις. Η σύγχρονη κουζίνα είναι πλήρως εξοπλισμένη και συνδέεται αρμονικά με το σαλόνι, προσφέροντας πρακτικότητα και ευκολία. Το διαμέρισμα διαθέτει επίσης μεγάλο μπαλκόνι, το οποίο παρέχει επιπλέον εξωτερικό χώρο για να απολαύσετε τον καθαρό αέρα ή να χαλαρώσετε με θέα την περιοχή. Στο υπόγειο, υπάρχει αποθήκη 12 τ.μ., η οποία προσφέρει άφθονο χώρο για να αποθηκεύσετε τα προσωπικά σας αντικείμενα και να κρατήσετε τον υπόλοιπο χώρο τακτοποιημένο. Η θέση στάθμευσης εξασφαλίζει άνετη και ασφαλή στάθμευση για το όχημά σας. Αυτό το διαμέρισμα αποτελεί την τέλεια επιλογή για όσους αναζητούν έναν μοντέρνο και λειτουργικό χώρο διαβίωσης με όλες τις ανέσεις για μια άνετη καθημερινότητα. Το εννιαίο σαλόνι και κουζίνα δημιουργούν έναν ανοιχτό και φωτεινό χώρο, ιδανικό για οικογενειακές στιγμές ή φιλοξενία φίλων. Ο μοντέρνος σχεδιασμός της κουζίνας και η άμεση σύνδεση με το σαλόνι προσφέρουν ευχάριστη ροή και πρακτικότητα στην καθημερινή ζωή. Επιπλέον, το διαμέρισμα διαθέτει αποθήκη 12 τ.μ. στο υπόγειο, παρέχοντας άφθονο χώρο για αποθήκευση και οργάνωση. Η θέση στάθμευσης εξασφαλίζει εύκολη πρόσβαση και άνεση για το όχημά σας. Ένα διαμέρισμα ιδανικό για όσους επιθυμούν να ζήσουν σε ένα μοντέρνο και πρακτικό περιβάλλον, με όλες τις ανέσεις που απαιτούνται για μια άνετη καθημερινότητα.